注文住宅 施工実績-11 三重県鈴鹿市

目次
- ○ 【鈴鹿市 K様邸🌳🏠𖤣𖥧】
- ○ 施工写真✧︎。📸*
- ・【リビング】
- ・【キッチン】
- ・【キッチン】
- ・【洗面】
- ・【ランドリースペース】
- ・【WIC】
- ・【1階トイレ】
- ・【浴室】
- ・【洋室1】
- ・【洋室2】
- ・【洋室3】
- ・【玄関】
- ・【顔認証システム】
- ○ 完成までの変化
- ○ 間取り
【鈴鹿市 K様邸🌳🏠𖤣𖥧】
K様は他社で住宅ローンの審査が通らず、一度はマイホームを諦めかけておられました。
しかし、「どうしても理想の暮らしを叶えたい」という想いをお聞きし
改めて弊社で住宅ローンの再審査をご提案。
無事に審査を通過し念願の家づくりがスタートしました。
「一度落ちてしまったから…」と諦めずに、ぜひ一度ご相談ください。
私たちは、お客様の「建てたい」という想いに寄り添い
資金計画から設計までトータルでサポートいたします。
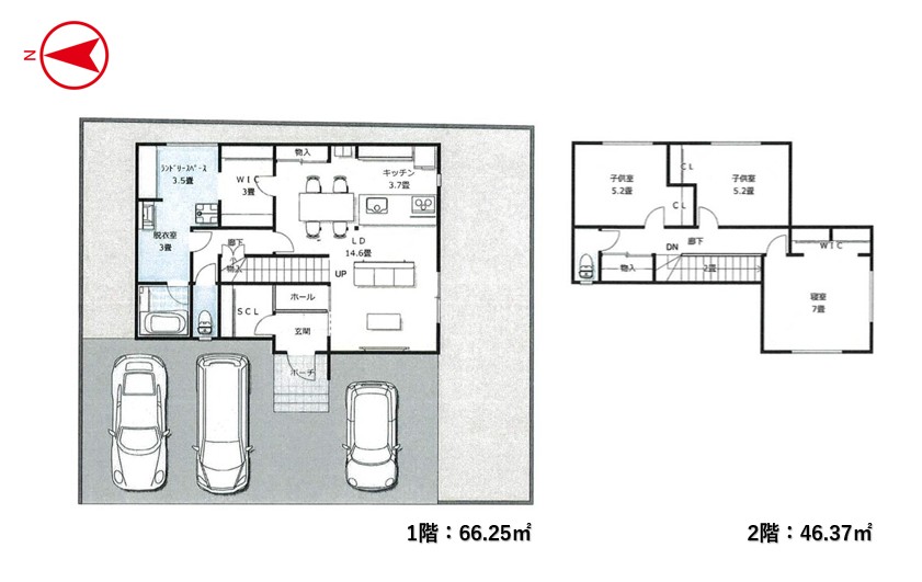
■敷地面積と間取り🏷️ 𓂂𓏸
敷地面積:189.57㎡(約57.36坪)
延べ床面積:1階:66.25㎡(20.04坪) 2階:46.37㎡(14.03坪) 合計:112.62㎡(34.07坪)
間取り:3LDK
■施工のポイント🏷️ 𓂂𓏸
1.鍵は「顔」で開ける時代。最新の顔認証システムを導入!
玄関には次世代の鍵の在り方である顔認証システムを搭載。
買い物帰りで両手がふさがっていてもドアの前に立つだけでスムーズに解錠できます。
防犯性が高いのはもちろん、お子様の帰宅時も「ハンズフリー」で迎えられるストレスフリーな最新設備です!✨
2. キッチン・水回り・WICが直結!究極の「家事ラク回遊導線」
1階のキッチン、洗面脱衣室、ランドリー、そして3帖のWICを一直線に配置した、ぐるっと回れる回遊動線が最大の魅力です。
キッチンからも洗面側からもアクセスでき、干した衣類は隣のWICへ数歩で収納。
「洗う・干す・畳む・しまう」が最短距離で完結し、家事時間を劇的に短縮します。
3. アーチ壁とブラックデザインが織りなす「ホテルライクな機能美」
キッチンや浴室に重厚なブラックを採用しつつ、ランドリーや玄関の入り口には柔らかなアーチ垂れ壁をあしらいました。
シックな格好良さの中に遊び心をプラスしたデザイン性と機能性を高次元で両立させた住まいです。
4. 収納力が自慢!
1階の3帖WICや2階主寝室のWICに加え玄関には大容量のシューズクローク(SCL)を完備。
さらに階段下や2階廊下など家中のデッドスペースを余すことなく収納として活用しました。
各居室にもクローゼットを備えており、収納家具を置かずに広々とした空間でスッキリと暮らせる住まいです!
施工写真✧︎。📸*

道路側にはあえて大きな窓を設けず、高窓(ハイサイドライト)を効果的に配置。
外からの視線を美しく遮りながら室内には柔らかな光と青空を届けます。˗ˏˋ ☀️
少し奥まった玄関ポーチは雨の日のゆとりを生む実用的な設計。
日々の使い勝手を追求した機能美が暮らしの質を高めます。
【リビング】

リビングのメイン壁面にはムラ感のある表情豊かなダークグレーのアクセントクロスを採用しました。
無機質になりすぎず、おしゃれなカフェやスタジオのような奥行きのある空間を演出しています。
【キッチン】

高級感あふれるブラックの大理石調デザインをセレクト。
ワークトップまで黒で統一することで、空間を格上げする洗練された佇まいを実現しました✨
リビング側全面が「隠し収納」になっていて
散らかりがちな書類や小物、お子様の学習道具もまるごと飲み込みいつでも生活感ゼロのLDKへ。
デザインと機能が美しく響き合うこだわり抜いたフルフラットキッチンの形です.*・゚
【キッチン】

キッチンに立った瞬間、リビングの端まで視線がまっすぐ抜ける開放的なレイアウトが広がり
お料理をしながらリビングにいるご家族と会話を楽しんだり、
遊んでいるお子様の様子を優しく見守ったりできる家族の繋がりを大切にした安心感のある設計です。
コンロ前には壁ではなく透明なガラスを採用することで視界を遮らずLDKの一体感を最大限に高めました。
空間をより広く、より明るく見せてくれます💪🏻✨
【洗面】

お手入れのしやすいハイバック仕様の洗面ボウルや収納力に優れた三面鏡を採用。
デザインの美しさを損なうことなく日々の掃除のしやすさや実用性もしっかりと兼ね備えています。
【ランドリースペース】

洗面脱衣室の隣には、広々とした造作カウンターを設けた3.5帖のランドリースペースを配置しました。
「洗う・干す・畳む」の導線がコンパクトに完結するため、日々の家事負担を大幅に軽減。
アイロン掛けや洗濯物を畳む作業はもちろん、
ちょっとした家事の合間のワークスペースとしても活用できるゆとりある設計が魅力です!✨
【WIC】

ランドリースペースのすぐ隣には、3帖のゆとりあるWICを配置しました。
柔らかな曲線が美しいアーチ型の垂れ壁を採用し
視覚的にも可愛らしいアクセントとして家事の時間を楽しいものにしてくれます(^^)/
【1階トイレ】

壁面には光の当たり方で表情を変えるシルバーグレーのアクセントクロスを。
木目調カウンターが温かみを添え、モダンながらも落ち着ける空間を演出しています。
窓からの自然光と明るい床材が相まって、清潔感あふれる心地よい空間が完成しました。 𓂃𓈒𓂂 🪴
【浴室】

ブラック×ホワイトのコントラストが美しいバスルーム。
シックな黒の浴槽とアクセントパネルがまるで高級ホテルのような重厚感を演出します!
横長に配置したワイドミラーが空間に広がりを感じさせ
毎日のバスタイムを心からリラックスできる特別なひとときへと変えてくれます🛁 ⟡
【洋室1】

5.2帖の洋室。
コンパクトな空間ながら、二面採光のデザインによって開放感と明るさをしっかり確保しました。
壁の一面には落ち着いたグレーのアクセントクロスを施し、シンプルながらも個性が光るモダンな雰囲気に。
お子様のお部屋や趣味の空間、ワークスペースなどライフスタイルに合わせて多目的に心地よく使える一室です。
【洋室2】

5.2帖の洋室。
高い位置に配置された横長窓は
プライバシーを守りながらも一日中安定した光を採り込みます。
扉のないオープンタイプのクローゼットにすることでお部屋をより広く見せるとともに、
衣類の出し入れもスムーズに👗 ✧
【洋室3】

7帖の主寝室。
壁の一面には横ラインが美しい石目調のアクセントクロスを採用。
落ち着いたグレーのトーンが寝室にふさわしい上質で穏やかな空気感を生み出しています。
お部屋の一角には大容量のWICを併設。
衣類や季節物までスッキリと収納できるため居住スペースを常に美しく広々と保つことができます。
【玄関】

土間収納への入り口をアーチ壁にし、デザインにアクセントを。
可動棚付きの広い収納スペースで玄関をいつもスッキリと保てます。
【顔認証システム】

唯一無二の鍵、それはあなたの「顔」
カギはもう持たない!次世代の「顔認証システム」導入!
このお家の自慢は、なんといっても玄関に導入した最新の顔認証システムです!
ハンズフリーで即解錠! 両手がふさがっていても、ドアの前に立つだけで一瞬でオープン。
「カギを探す」手間をゼロに。圧倒的な先進性と安心感。
防犯性と快適さを両立したワンランク上の暮らしを実現します🗝️ ₊˚
完成までの変化

間取り

---------------
カナウホームでは、
不動産の購入・売却・仲介、
注文住宅やリフォームも手掛けております💁♂️
どんなことでもお気軽にご相談ください!